
TAJUK: RUMAH TERES SETINGKAT DI D’AANGGUN RESIDENCE, HULU SELANGOR SEDANG DALAM JUALAN, KHAS UNTUK KAKITANGAN KERAJAAN SAHAJA
MAKLUMAT RUMAH
Nama Projek: D'Anggun Residence
Lokasi: Kalumpang, Hulu Selangor, Selangor
Jenis: Teres Setingkat
Nama Projek: D'Anggun Residence
Lokasi: Kalumpang, Hulu Selangor, Selangor
Jenis: Teres Setingkat
BILIK TYPE A
• RT4, RT4A (Type A) - 3 Bilik Tidur / 2 Bilik Air
• RT5 (Type A1) - 3 Bilik Tidur / 2 Bilik Air
• RT6 (Type A2) - 3 Bilik Tidur / 2 Bilik Air
BILIK TYPE B
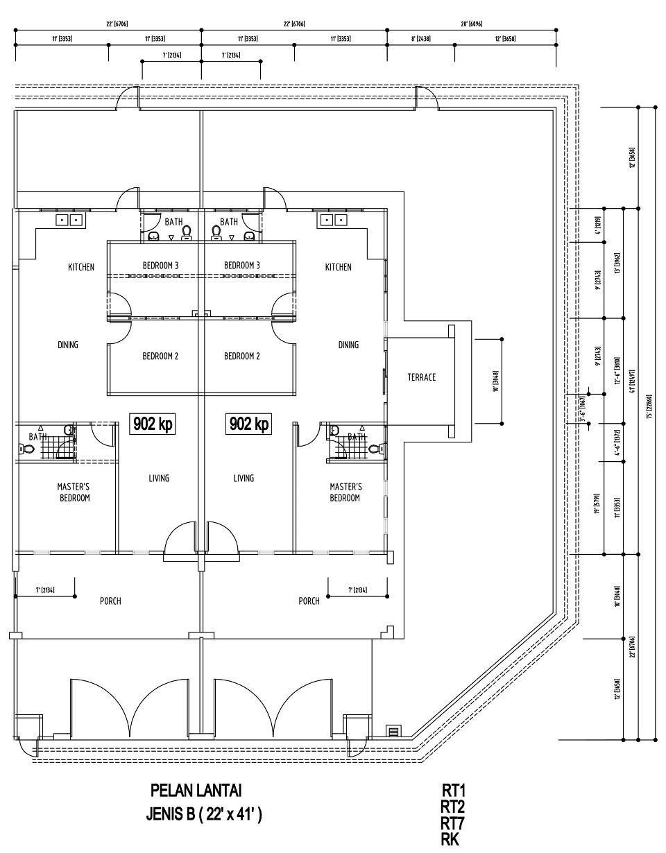
• RT1, RT2, RT7 (Type B) - 3 Bilik Tidur / 2 Bilik Air
• RT3 (Type B1) - 3 Bilik Tidur / 2 Bilik Air
• RT8 (Type B2) - 3 Bilik Tidur / 2 Bilik Air
KELUASAN BINAAN TYPE A
• RT4, RT4A (Type A) - 20' x 45' (900) kps
• RT5 (Type A1) - 20' x 44.6 (890) kps
• RT6 (Type A2) - 20' x 40' (800) kps
KELUASAN BINAAN TYPE B
• RT1, RT2, RT7 (Type B) - 22' x 41' (902) kps
• RT3 (Type B1) - 20' x 45' (900) kps
• RT8 (Type B2) - 20' x 50' (kps)
KELUASAN TANAH TYPE A
• RT4, RT4A (Type A) - Bermula dari 20' x 70' (1,400) kps
• RT5 (Type A1) - Bermula dari 20' x 65' (1,300) kps)
• RT6 (Type A2) - Bermula dari 20' x 60' (1,200) kps
KELUASAN TANAH TYPE B
• RT1, RT2, RT7 (Type B) - Bermula dari 22' x 75' (1,650) kps
• RT3 (Type B1) - Bermula dari 22' x 75' (1,500) kps
• RT8 (Type B2) - Bermula dari 20' x 100' (2,000) kp
STATUS TANAH:
1) Leasehold Rezab Melayu:
RT1, RT2, RT3, RT4, RT4A, RT5, RT6, RT7
2) Leasehold Open Title:
RT7, RT8
JANGKAAN PROJEK SIAP
Jangkaan siap tahun 2025
Harga: Bermula dari RM 299,000
Pilihan Pembiayaan: LPPSA
• RT5 (Type A1) - 3 Bilik Tidur / 2 Bilik Air
• RT6 (Type A2) - 3 Bilik Tidur / 2 Bilik Air
BILIK TYPE B
• RT1, RT2, RT7 (Type B) - 3 Bilik Tidur / 2 Bilik Air
• RT3 (Type B1) - 3 Bilik Tidur / 2 Bilik Air
• RT8 (Type B2) - 3 Bilik Tidur / 2 Bilik Air
KELUASAN BINAAN TYPE A
• RT4, RT4A (Type A) - 20' x 45' (900) kps
• RT5 (Type A1) - 20' x 44.6 (890) kps
• RT6 (Type A2) - 20' x 40' (800) kps
KELUASAN BINAAN TYPE B
• RT1, RT2, RT7 (Type B) - 22' x 41' (902) kps
• RT3 (Type B1) - 20' x 45' (900) kps
• RT8 (Type B2) - 20' x 50' (kps)
KELUASAN TANAH TYPE A
• RT4, RT4A (Type A) - Bermula dari 20' x 70' (1,400) kps
• RT5 (Type A1) - Bermula dari 20' x 65' (1,300) kps)
• RT6 (Type A2) - Bermula dari 20' x 60' (1,200) kps
KELUASAN TANAH TYPE B
• RT1, RT2, RT7 (Type B) - Bermula dari 22' x 75' (1,650) kps
• RT3 (Type B1) - Bermula dari 22' x 75' (1,500) kps
• RT8 (Type B2) - Bermula dari 20' x 100' (2,000) kp
STATUS TANAH:
1) Leasehold Rezab Melayu:
RT1, RT2, RT3, RT4, RT4A, RT5, RT6, RT7
2) Leasehold Open Title:
RT7, RT8
JANGKAAN PROJEK SIAP
Jangkaan siap tahun 2025
Harga: Bermula dari RM 299,000
Pilihan Pembiayaan: LPPSA
KEISTIMEWAAN:
Tanpa Deposit
Tanpa Bayaran Tempahan (Booking Fee)
Percuma Perjanjian Pinjaman (Loan Agreement)
Percuma Yuran Guaman (Sales & Purchase Agreement)
Percuma Kos Tukar Hak Milik (Memorandum of Transfer)
Percuma Stamp Duty (Pemilikan Hartanah Pertama)
Percuma Stamp Duty (Untuk Pemilikan Hartanah ke-2 dan tertakluk kepada terma dan syarat pihak terbabit)
Khas Untuk Kakitangan Kerajaan
KEMUDAHAN BERHAMPIRAN:
Sekolah Kebangsaan Kalumpang – 2.7KM (6 minit)
Sekolah Menengah Kebangsaan Kalumpang – 1KM (4 minit)
SJKC Kalumpang – 2.5KM (6 minit)
Universiti Pendidikan Sultan Idris – 8.6KM (14 minit)
Sekolah Rendah Agama, Kalumpang – 2.5KM (5 minit)
GIATMARA Hulu Selangor – 2.6KM (5 minit)
Klinik Kesihatan Kalumpang – 1.7KM (6 minit)
Unit Kecemasan Dan Trauma Klinik Kesihatan Tanjung Malim – 7.6KM (9 minit)
Pejabat Agama Islam Daerah Hulu Selangor – 15.8KM (18 minit)
Pejabat Pendidikan Daerah Hulu Selangor – 17.8KM (20 minit)
Balai Polis Kalumpang – 1.7KM (4 minit)
Pusat Latihan Pertanian Kalumpang – 1.8KM (5 minit)
KAWASAN BERDEKATAN:
Air Terjun Kalumpang – 4.9KM (13 minit)
Kalumpang Resort & Training Centre – 3.9KM (11 minit)
Adelia Hill Farm – 3.5KM (11 minit)
Ara Garden Kerling – 6.9KM (17 minit)
Refreshing Springs Resort – 6.6KM (16 minit)
Sri Damai Riverside – 3.6KM (12 minit)
MDRBA Kalumpang Farm – 6.1KM (18 minit)















Tanpa Deposit
Tanpa Bayaran Tempahan (Booking Fee)
Percuma Perjanjian Pinjaman (Loan Agreement)
Percuma Yuran Guaman (Sales & Purchase Agreement)
Percuma Kos Tukar Hak Milik (Memorandum of Transfer)
Percuma Stamp Duty (Pemilikan Hartanah Pertama)
Percuma Stamp Duty (Untuk Pemilikan Hartanah ke-2 dan tertakluk kepada terma dan syarat pihak terbabit)
Khas Untuk Kakitangan Kerajaan
KEMUDAHAN BERHAMPIRAN:
Sekolah Kebangsaan Kalumpang – 2.7KM (6 minit)
Sekolah Menengah Kebangsaan Kalumpang – 1KM (4 minit)
SJKC Kalumpang – 2.5KM (6 minit)
Universiti Pendidikan Sultan Idris – 8.6KM (14 minit)
Sekolah Rendah Agama, Kalumpang – 2.5KM (5 minit)
GIATMARA Hulu Selangor – 2.6KM (5 minit)
Klinik Kesihatan Kalumpang – 1.7KM (6 minit)
Unit Kecemasan Dan Trauma Klinik Kesihatan Tanjung Malim – 7.6KM (9 minit)
Pejabat Agama Islam Daerah Hulu Selangor – 15.8KM (18 minit)
Pejabat Pendidikan Daerah Hulu Selangor – 17.8KM (20 minit)
Balai Polis Kalumpang – 1.7KM (4 minit)
Pusat Latihan Pertanian Kalumpang – 1.8KM (5 minit)
KAWASAN BERDEKATAN:
Air Terjun Kalumpang – 4.9KM (13 minit)
Kalumpang Resort & Training Centre – 3.9KM (11 minit)
Adelia Hill Farm – 3.5KM (11 minit)
Ara Garden Kerling – 6.9KM (17 minit)
Refreshing Springs Resort – 6.6KM (16 minit)
Sri Damai Riverside – 3.6KM (12 minit)
MDRBA Kalumpang Farm – 6.1KM (18 minit)
GALERI LUARAN RUMAH









GALERI RUMAH BAHAGIAN DALAM





[TEASER] D'ANGGUN RESIDENCE
PELAN LANTAI JENIS A (20 X 45) RT4, RT4A
PELAN LANTAI JENIS A1 (20 X 44-6) RT5
KEDUDUKAN D’AANGGUN RESIDENCE, HULU SELANGOR
UNTUK MELAWAT KAWASAN PROJEK / PENEMPATAN RUMAH BOLEH TEKAN LINK DI BAWAH:
https://goo.gl/maps/sadRPsCRo1gcx3Do8
https://goo.gl/maps/sadRPsCRo1gcx3Do8
PENDAFTARAN BELI RUMAH SEKARANG

Bagi memudahkan urusan jual beli, pembeli boleh terus mengikuti 8 LANGKAH seperti yang dinyatakan di bawah, untuk meneruskan proses pembelian rumah.
LANGKAH 1
Isi Borang Permohonan Beli Rumah Secara Online, Klik butang "Jom Daftar Sekarang" dibawah:
LANGKAH-LANGKAH PROSES BELI RUMAH
LANGKAH 1
Isi Borang Permohonan Beli Rumah Secara Online, Klik butang "Jom Daftar Sekarang" dibawah:
Kakitangan kami akan memberikan maklum balas sebaik sahaja mereka menerima borang permohonan anda.
LANGKAH 3
Hantarkan dokumen yang diperlukan seperti senarai di bawah:
✔PINJAMAN DI LPPSA
1. Salinan IC Depan dan Belakang Pemohon
2. Sijil Beranak Pemohon
3. Surat Pengesahan atau Pelantikan
4. Slip gaji 3 bulan terkini
5. Sijil nikah jika berkahwin
6. Salinan IC Pasangan jika sudah berkahwin
7. Salinan IC Warisan jika bujang
8. Surat Kadar Pencen Terkini atau Penyata Terperinci KWSP (Jika Ada Potongan KWSP)
9. Slip gaji 3 bulan pasangan jika bekerja
Atau
✔PINJAMAN DALAM BANK
1. Salinan IC Depan dan Belakang Pemohon
2. Surat Kelulusan Perkhidmatan
3. Slip gaji terkini 6 bulan
4. Penyata Terperinci KWSP terkini pemohon
5. Salinan Pair Depan Belakang IC
6. Slip gaji 3 bulan pasangan jika bekerja
NOTA:
Hantar dokumen yang diperlukan seperti yang disenaraikan di atas melalui WhatsApp atau e-mel
a) Whatsapp: http://www.wasap.my/60105375779/HantarDkLoan
b) E-mel: sheemibrahim@gmail.com
LANGKAH 4
Jika permohonan anda layak, kami akan hantar fail untuk anda pilih lot/unit/rumah yang masih belum dijual.
LANGKAH 5
Kakitangan kami akan membantu menghantar dokumen permohonan pinjaman anda ke LPPSA atau panel bank kami untuk diproses
LANGKAH 6
Lulus pinjaman sama ada LPPSA atau Bank, Surat Tawaran akan dihantar segera ke alamat surat menyurat pemohon
LANGKAH 7
Proses menandatangani Surat Perjanjian Jual Beli Rumah (SPA/SNP)
LANGKAH 8
Penyerahan Kunci Rumah

%20RT4,%20RT4A.jpg)
%20RT5.jpg)
%20RT6.jpg)
%20RT1,%20RT2,%20RT7,%20RK.jpg)
%20RT8.jpg)
%20RT4,%20RT4A.jpg)
%20RT1,%20RT2,%20RT7,%20RK.jpg)
%20RT3.jpg)

